Queens House, Micklegate, York, YO1 6JH
| Riverside House, 11-12 Nelson Street, Hull, HU1 1XE
Home > Properties > Former Brigantes, 114-116 Micklegate, York, YO1 6JX

Former Brigantes, 114-116 Micklegate, York, YO1 6JX

UNDER OFFER (ref 17)

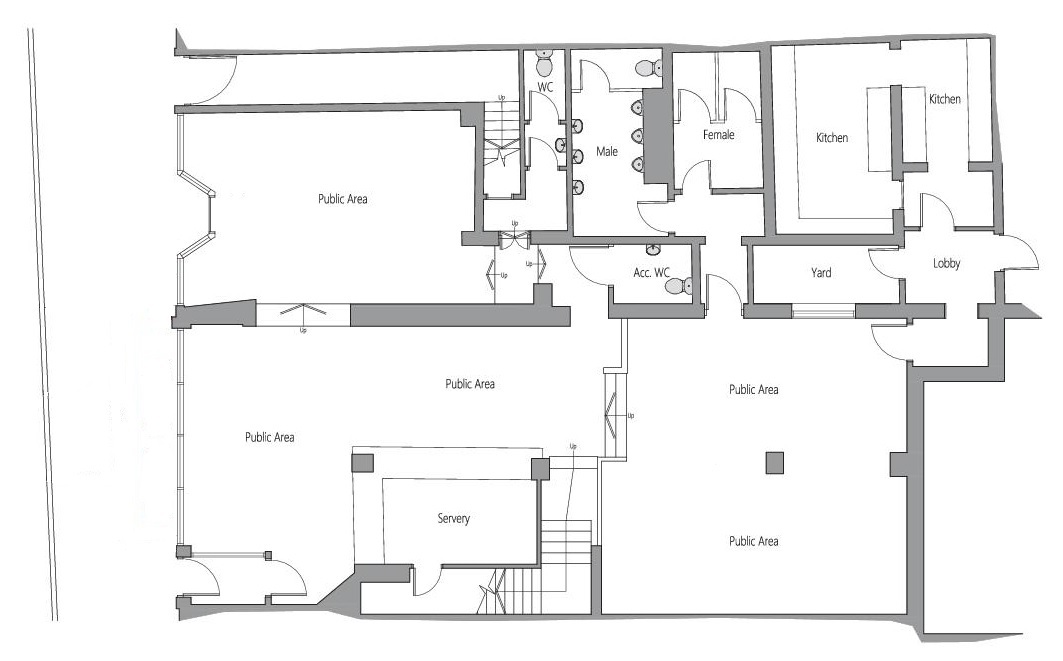
The subject property provides a ground floor and basement leisure/licensed unit which had been operated as “Brigantes” for the last 17 years or so, it is currently closed.

The unit benefits from a wide double frontage, being formerly two separate units and provides an easily worked open plan trading area with bar servery. To the rear of the trading area are well fitted-out toilets, in addition to a commercial kitchen and food preparation area.

The unit also benefits from a basement cellar with beer drop from Micklegate.

Licensed Premises/Restaurant Opportunity. Formerly Trading As Brigantes

Situated on Micklegate, an increasingly popular independent food & drink destination

Within close proximity to York railway station, bar walls and numerous hotels

Net Internal Area Circa: 221.91 Sq.M (2,389 Sq.Ft) Over Ground and Basement

The property is located on Micklegate, which forms an important route into the city. The street has re-invented itself over recent years with the help of local traders and is now a popular destination for food and drink lovers, having a variety of high-quality food and drink establishments. The street also has a range of independent retailers, hairdressers/beauty salons and estate agents amongst others.

Ground Floor; Bar, Trading Area, Kitchen, Store and Customer Toilets, Basement; Beer Cellar

UNDER OFFER (ref 17)

Situated on Micklegate, an increasingly popular independent food & drink destination

Request details

Fields marked with an asterisk (*) are required.

Request more information about this property or register your interest.

Other properties you may like

White Swan, Main Street, Wighill, North Yorkshire, LS24 8BQ

Tenure: Leasehold
For Rent £50,000 PA

Indigo Alley, 4 North Marine Road, Scarborough, North Yorkshire, YO12 7PD

For Sale £235,000

Selby Trades Hall And Club,, 71-73 Micklegate, Selby, North Yorkshire, YO8 4ED

UNDER OFFER

The Stiddy, High Street, Lythe, Whitby, North Yorkshire, YO21 3RT

For Rent £55,000 PA

Get in touch with us

Contact Barry Crux & Company quickly and easily using the form below.

LinkedIn icon Facebook icon