Former Brigantes, 114-116 Micklegate, York, YO1 6JX
UNDER OFFER (ref 17)
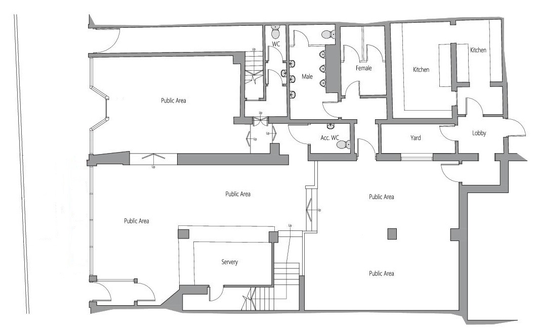
The subject property provides a ground floor and basement leisure/licensed unit which had been operated as “Brigantes” for the last 17 years or so, it is currently closed.
The unit benefits from a wide double frontage, being formerly two separate units and provides an easily worked open plan trading area with bar servery. To the rear of the trading area are well fitted-out toilets, in addition to a commercial kitchen and food preparation area.
The unit also benefits from a basement cellar with beer drop from Micklegate.
Licensed Premises/Restaurant Opportunity. Formerly Trading As Brigantes
Situated on Micklegate, an increasingly popular independent food & drink destination
Within close proximity to York railway station, bar walls and numerous hotels
Net Internal Area Circa: 221.91 Sq.M (2,389 Sq.Ft) Over Ground and Basement
The property is located on Micklegate, which forms an important route into the city. The street has re-invented itself over recent years with the help of local traders and is now a popular destination for food and drink lovers, having a variety of high-quality food and drink establishments. The street also has a range of independent retailers, hairdressers/beauty salons and estate agents amongst others.
Ground Floor; Bar, Trading Area, Kitchen, Store and Customer Toilets, Basement; Beer Cellar
UNDER OFFER (ref 17)
Situated on Micklegate, an increasingly popular independent food & drink destination
Request details
Fields marked with an asterisk (*) are required.
Request more information about this property or register your interest.
Other properties you may like
White Swan, Main Street, Wighill, North Yorkshire, LS24 8BQ
Tenure: Leasehold
For Rent £3,300 (Offers invited)
Indigo Alley, 4 North Marine Road, Scarborough, North Yorkshire, YO12 7PD
For Sale £185,000
Selby Trades Hall And Club,, 71-73 Micklegate, Selby, North Yorkshire, YO8 4ED
UNDER OFFER
The Stiddy, High Street, Lythe, Whitby, North Yorkshire, YO21 3RT
For Rent £55,000 PA